
防护防火密闭门的显著特点是防火能力强,门扇中有防火填料,除具有普通防护密闭门或密闭门的功能外还能防火、防烟,其防火等级为甲级。

| 型号 |
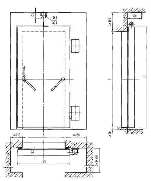
门孔宽B |
门孔高H |
B1 |
H1 |
| FFHM0820(6) |
800 |
2000 |
1000 |
2123 |
| FFHM1020(6) |
1000 |
2000 |
1200 |
2123 |
| FFHM1118(6) |
1100 |
1800 |
1300 |
1923 |
| FFHM1220(6) |
1200 |
2000 |
1400 |
2123 |
| FFHM1320(6) |
1300 |
2000 |
1500 |
2123 |
| FFHM1520(6) |
1500 |
2000 |
1700 |
2123 |